Digital twin model for the existing building which is to be renovated for accurate estimates of construction costs & timelines

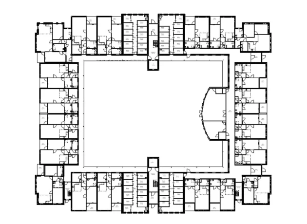
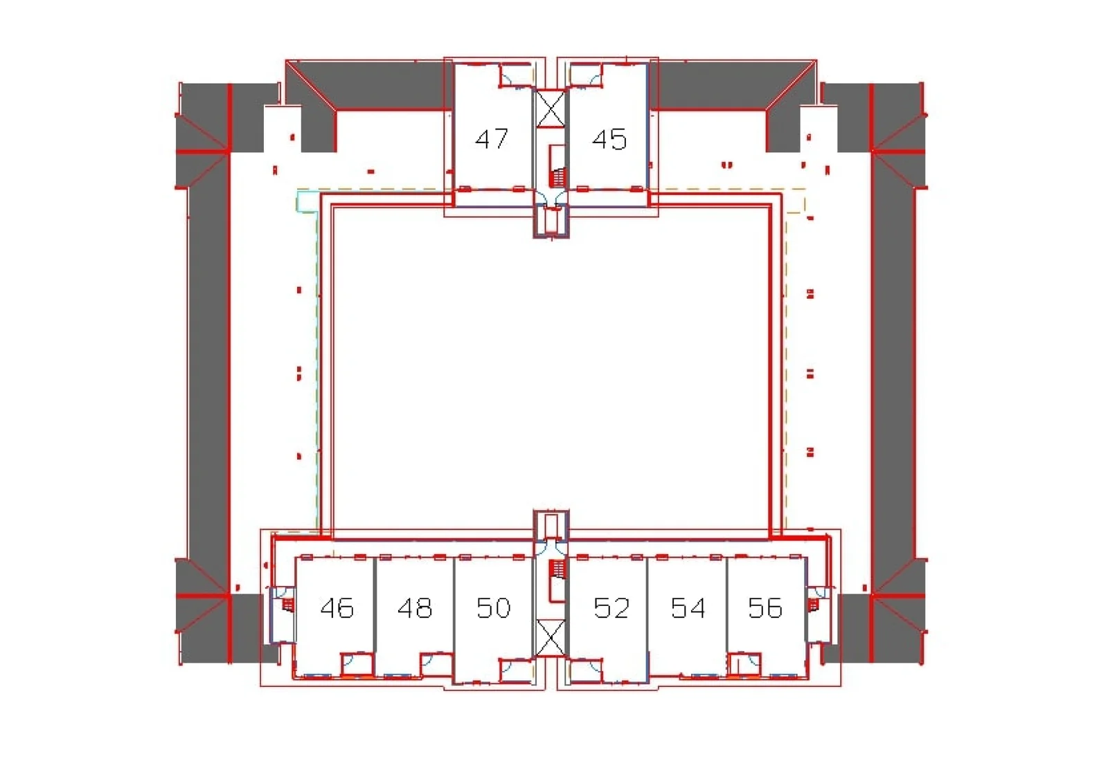
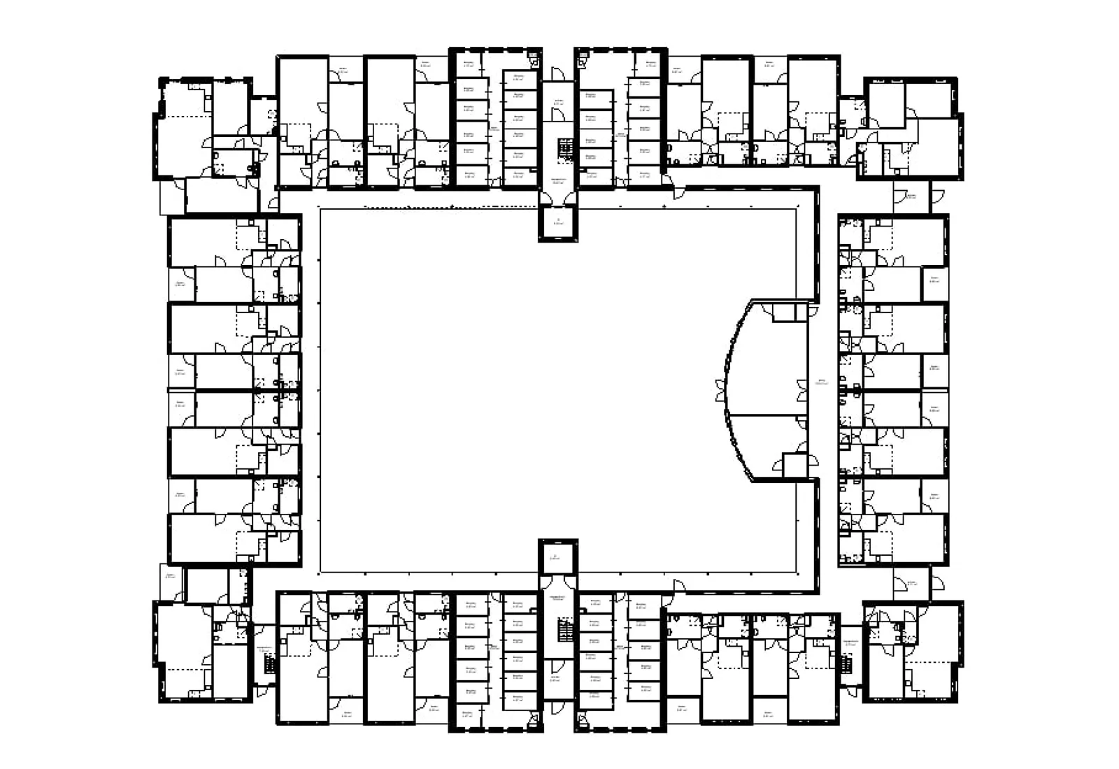
For particular city/street digitization, as per the house layout and the position we define the house type names, which help us to create the 3D BIM models. With the two dimensional site drawings, we created a 3D BIM model of the individual houses after that, we compile all the houses together with a common area massing as a one building block. 3D BIM model provides us a more visual and easily understandable representation of the construction project. It generates accurate estimates of construction costs, timelines, and many other uses.

Looking to Start a Project? We're Here to Help

Contact Form Demo

Project Information

Location: Vondelstraat 4, 3771 GE Barneveld, Netherlands

Type: IFC to BIM

Services Provided: Built 3D BIM models of each house and brought them together with shared common areas to create one complete building block.

Project Objective:

First we create the individual models of particular unit and then we compile all the units together as a one file with their appropriate common areas. With this we can generate the 2D drawings of all the units together.

Client Synopsis:

For this Project, we create the 3D BIM model in Revit.

Challenges Faced:

First, we studied the individual drawings as per the numbers of houses. After that we fixed the common area to connect all the units. Our main challenge for this Project is that we need to model everything as per the existing house with the reference of Google maps and Bag viewer.

Conclusion:

For this Project, we get to explore the 3D Revit modelling.

Get Accurate BIM Models from Your Scan Data

Partner with VenusBIM for reliable Scan to BIM solutions that turn your existing spaces into intelligent, data-rich models ready for design, analysis, and management.

Setting New Standards of Excellence in BIM Modeling

Appointment