CAD drafting services are a technical process that creates, modifies, analyzes, and optimizes designs, which includes technical drawings and project plans. The AEC sector has witnessed a whirlwind of technological advancements that enhance project quality, efficiency, and accuracy. One of them is CAD drawing services, which serve as the cornerstone of construction projects that make it easier for engineers, architects, and other AEC professionals to work. Being a pivotal role player in the industry, our architectural drafting services offer various benefits, including:






The immense importance of AutoCAD drafting services in AEC projects enhances the quality and delivers result-oriented outcomes with zero chances of errors. The need to convert technical drawings allows professionals to work with precision. VenusBIM delivers high-quality and exceptional architectural CAD drafting service by a team of talented and professional CAD draftsman. With years of experience in the industry, outsourcing CAD drafting services with VenusBIM can deliver technical CAD drawings compatible with software like AutoCAD and more. Our global exposure helps us to be updated with current market trends and standards that push us to deliver qualitative results. The professional team of VenusBIM offers a range of 3D CAD drawing services.
With an experienced resource pool, VenusBIM aims to deliver precise technical drawings and plans using cutting-edge technologies and cost-effective pricing plans. We are a leading outsourcing drafting services company based in India, offering an extensive range of CAD drafting solutions.
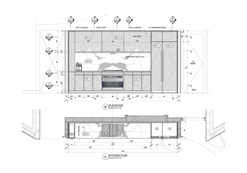
Architectural CAD drafting services by VenusBIM create 2D architectural CAD drafts, floor plans, and sectional views for seamless communication and collaboration among AEC professionals. Moreover, the CAD drafting team also curates general layouts, furniture layout plans, elevations, site plans, and more by strictly following international standards. Architectural drawing services also include;
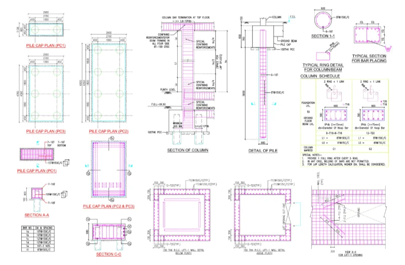
VenusBIM is proficient in providing structural CAD drafting services for commercial and residential infrastructures with precise and high-quality structural design and detailing.
Our structural 3D CAD drawings services include,
Our MEP CAD Drafting Services ensure the accuracy of MEP projects and can be used as a reference by MEP engineers to design, develop, site installation, and maintenance of each system. MEP AutoCAD drawing services are
With exposure to a global clientele, VenusBIM’s team is well-versed in architectural drawing services standards and equipped with the latest technologies and infrastructure to manage any complex project with high-end quality at competitive pricing. Choose us as your CAD drafting service partner for utmost precision and efficiency.
VenusBIM is well equipped with the latest technology and infrastructure to cater to complex projects accurately. We aim to deliver high-quality CAD drafting services by experts with broad exposure to a global clientele across various sectors. We strive to provide our CAD drafting expertise in the following AEC sectors;
CAD drafting services are a technical process that creates, modifies, analyzes, and optimizes designs, which includes technical drawings and project plans.
VenusBIM offers an extensive range of CAD drafting services; the following are
Our prices start at $10; however, they can vary depending on the project size, requirements, and complexity.
Yes, VenusBIM offers 2D and 3D CAD services for the construction project.
Yes, VenusBIM offers ongoing and post-project support in case of any queries, modifications, and additional requirements by clients.
To begin the project with UnqiuesCADD, send us your project details at info@venusbim.com.