Digital twin model for Facility & Space management

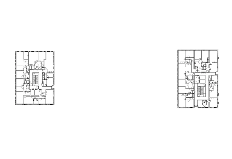
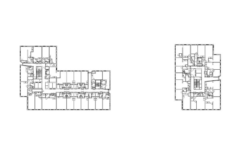
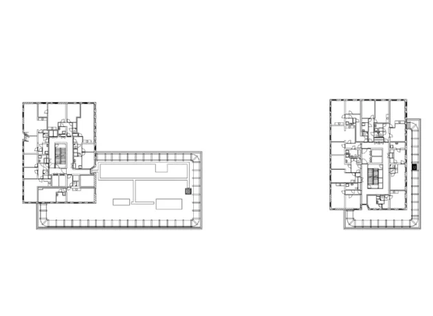
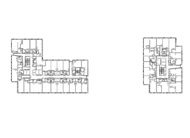
To begin the process of exploiting BIM model for the maintenance of a building facility, it supports the use of such information as a space parameters and created area colour scheme. This enables the functions to create floor plans as per the colour codes along with the area management. Space management is the core part of building structure.

Looking to Start a Project? We're Here to Help

Contact Form Demo

Project Information

Location: Rotterdam

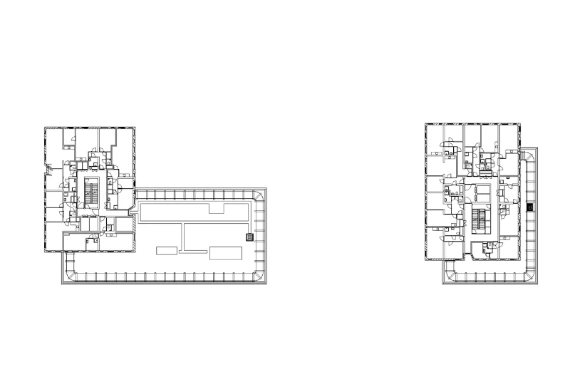
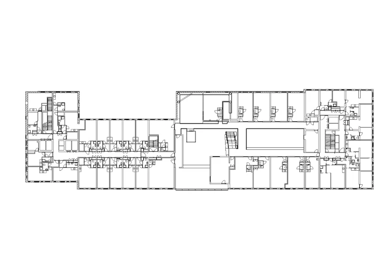
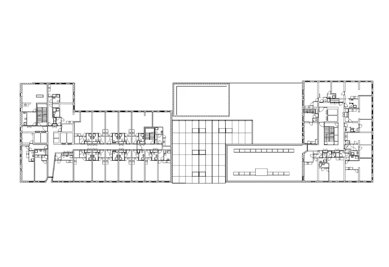
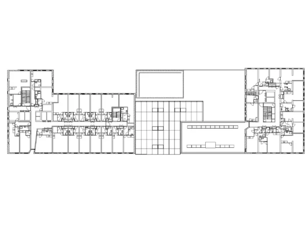
Type: PDF to BIM

Scope: Built a BIM model that can serve many purposes—from sustaining the structure to guiding smart building plans.

Project Objective:

As per the NL standards, the BIM model helps us to show every parameter of an architectural element which help us to calculate the areas and appropriate spaces in it. Every single architectural and non-architectural entity in the model shows the standard function and usage of spaces which helps in many different ways to maintain the building structure.

Client Synopsis:

As per the site measurement drawings, we created the BIM model which can used in many different ways to sustain the structure and building planning.

Challenges Faced:

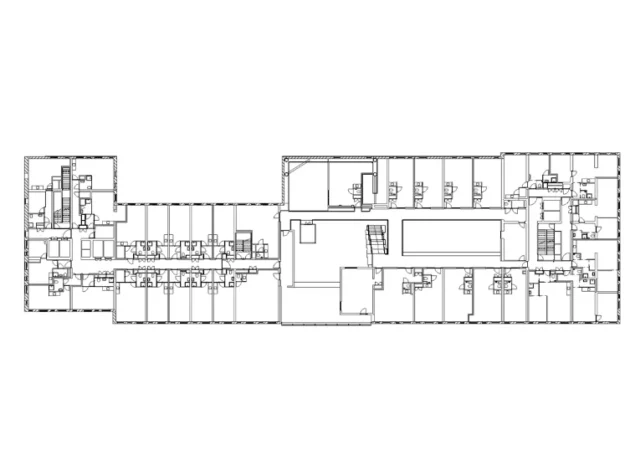
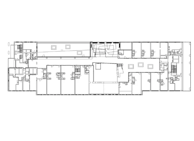
In the process of creating the multi-story BIM model, we studied all the standard parameters as per the object types. For accurate results, we followed Google maps and Bag viewer for the area confirmation. This 3D BIM model also help us to generate the drawings which included the 2D layout plans, Elevations and Sectional details-this will also help in the site execution part.

Conclusion:

3D BIM model covers all the necessary standard details.

Get Accurate BIM Models from Your Scan Data

Partner with VenusBIM for reliable Scan to BIM solutions that turn your existing spaces into intelligent, data-rich models ready for design, analysis, and management.

Setting New Standards of Excellence in BIM Modeling

Appointment